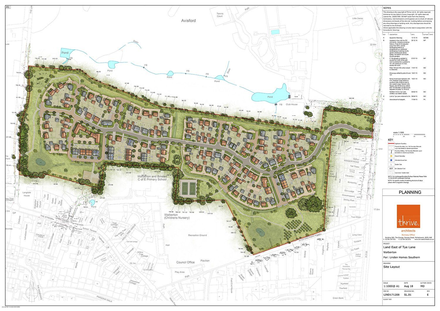
Land East of Tye LaneWalberton, West Sussex
Client: Private Landowner
District: Chichester
Size: 25 acre residential development site
Scheme: 175 dwellings
Background
MCC first identified the potential of the land in 2015. Having taken a formal instruction from the landowner later that year, MCC had preliminary discussions with Arun District Council, which formed the basis of a promotion strategy.
Following discreet marketing of the site in 2016, MCC negotiated terms and agreed a Promotion Agreement with Wates Developments Ltd. While continuing to act as landowner’s agent, MCC also acted as Planning Consultant in the promotion of the land.
The site did not benefit from an allocation in either the Walberton Neighbourhood Plan or the Arun Local Plan. A planning application was submitted for 175 dwellings in 2017 and the application was heard by Planning Committee in March 2018, when it was unanimously approved. As a result, the Parish benefited from the upgrade of recreational facilities including some new tennis courts and the site provided 30% affordable housing.
MCC then negotiated the sale of the land to Wates Developments, who are currently developing the site in a joint venture partnership with Linden Homes - Avisford Grange.
In just 2 ½ years, a greenfield site with limited redevelopment prospects, was unanimously granted planning consent and sold, which is testament to MCC, Wates Developments and the team of highly professional consultants involved in the promotion.
MCC Services
- Land owner’s agent
- Planning agent
- Site optimisation & planning strategy
- Marketing of strategic opportunity
- Heads of terms negotiation
- Contract negotiation
- Planning application
- Local & neighbourhood plan representations
- Contractual monitoring
- Disposal & marketing strategy
- Site disposal & contractual negotiations



